Proyecto de transportador de potencia y libre circulación AT100 en marcha.
24
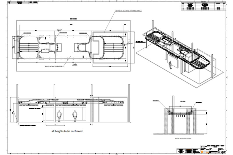
Este es un proyecto reciente que estamos desarrollando y que pronto estará listo para su instalación en mayo. La cinta transportadora es de nuestra gama AT100 Power and Free, con una capacidad de carga de 100 kg por carro. La configuración de doble barra de carga para carros ofrece una capacidad de carga de 200 kg con dimensiones de producto de hasta 3000 mm en línea, 2100 mm de alto y 200 mm de ancho, con rotación indexada de 360 grados. El sistema ofrece un diseño compacto y de alta eficiencia gracias a la funcionalidad Power and Free, con desplazamiento lateral dentro del horno y la zona de carga. Próximamente, más novedades.



#AmberIndustries #Transportadores #SistemasDeTransportadores #SistemasDePalets #TransportadoresPorGravedad #TransportadoresMotores #RodillosDeCinta #TransportadoresDeEje #TransportadoresDeCadena #TransportadoresDeListones #TransportadoresDeAeropuerto #TransportadoresDeClasificación #TransportadoresDeTransferencia #TransportadoresAéreos #TransportadoresEnReinoUnido #ManipulaciónDeMateriales
Other Articles
El Sidetrack 60 viene encapsulado para un funcionamiento más limpio y fluido.
22
Visite Amber Industries en Paint Expo 2026, en el pabellón 2, stand 2242.
14
La ventaja técnica del Sidetrack 60 diseñada para un tiempo de actividad óptimo.
2
¡Ven a visitar Amber Industries en Paint Expo 2026!
2
Amber Industries expondrá en Paint Expo 2026.
18
Datos técnicos publicados para transportadores de cadena aéreos
20
Felices fiestas de parte de Amber Industries
15
Sistemas de control para la automatización de transportadores aéreos
4
Gama MCM Powertrack de Amber Industries
4
Sistemas de transporte MCM Freetrack: un análisis detallado
13